堺市南区檜尾 太陽光発電 駐車3台可能

1,980万円

大阪府堺市南区檜尾3080-16

南海電鉄泉北線「光明池」駅徒歩24分

南海電鉄泉北線「和泉中央」駅徒歩40分

価格
1,980万円
間取り/建物面積
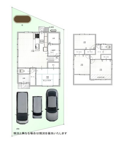
4LDK/93.96㎡
所在地
大阪府堺市南区檜尾3080-16
築年
2007年6月(築18年)
駐車
有(3台)
交通

南海電鉄泉北線光明池」駅 徒歩24分

南海電鉄泉北線和泉中央」駅 徒歩40分

堺市南区檜尾 太陽光発電 駐車3台可能の基本情報

物件名
堺市南区檜尾 太陽光発電 駐車3台可能
価格
1,980万円
建物面積
93.96㎡
土地面積
36.67坪(121.23㎡)
築年月
2007年6月(築18年)
総戸数
-
所在地
大阪府堺市南区檜尾3080-16
交通

南海電鉄泉北線光明池」駅 徒歩24分

南海電鉄泉北線和泉中央」駅 徒歩40分

堺市南区檜尾 太陽光発電 駐車3台可能の詳細情報

設備条件
  • 閑静な住宅地
  • 駐輪場
  • バイク置場あり
  • 駐車2台可
  • 駐車3台可
設備(その他)
    オール電化 
駐車場/月額
有(3台)/0円
土地権利
所有権
国土法届出
不要
用途地域
無指定
取引態様
仲介
引渡し
相談
備考
中古の戸建て物件は、経済的なメリットが大きいのが特徴です。前面道路6m以上という快適な空間を持つ中古一戸建をご提供いたします。土地面積は121.23㎡(公簿)でございます。当社でなら、きっとお客様に満足頂ける不動産をご紹介することができます。堺市南区で物件を求めるのであれば是非お任せください。

堺市南区檜尾 太陽光発電 駐車3台可能のコメント(おすすめポイント)

「堺市南区檜尾 太陽光発電 駐車3台可能」:堺市南区エリアの新居にピッタリ。こちらは中古の戸建て物件です。前面道路6m以上という駐車もラクラクな物件となっております。土地面積121.23㎡(公簿)でニーズのある中古一戸建となっています。住んだことの無い場所で不動産をお探しなら、当社にお任せください。地元を知り尽くしたスタッフがあなたのサポートを致します。ぜひご検討ください。

堺市南区檜尾 太陽光発電 駐車3台可能で募集中の物件

  1. 28.42坪 (93.96㎡)

    1,980万円(69.67万円/坪)

堺市南区檜尾 太陽光発電 駐車3台可能

お気軽にお問い合わせください

LINEからお問い合わせ 無料お問い合わせ

 Oneplus六甲道本店

078-846-3833

10:00~19:00

(休:水曜日)