ファーストフィオーレ東灘 0705

10.11万円

管理 / 共益費 10,000円

兵庫県神戸市東灘区青木2丁目

阪神本線「青木」駅徒歩5分

阪神本線「深江」駅徒歩14分

賃料
10.11万円
敷金(保証金)
0ヶ月(-)
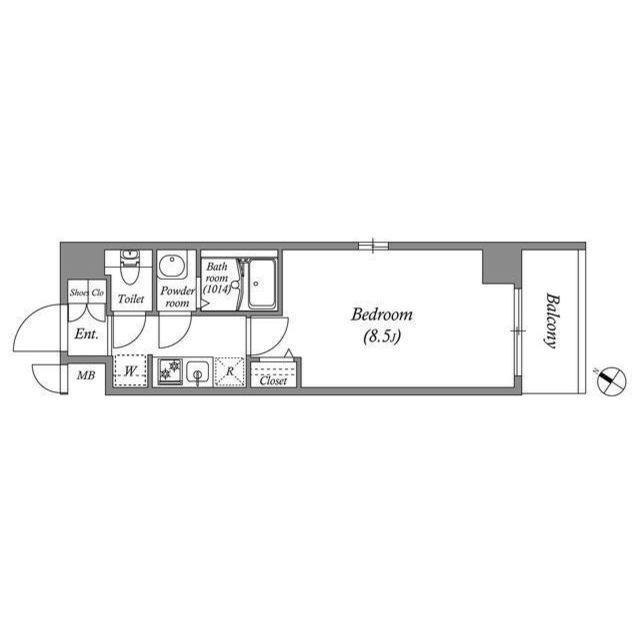
間取り
1LDK
向き
所在地
兵庫県神戸市東灘区青木2丁目
管理 / 共益費
10,000円
礼金
11.11万円
専有面積
38.69㎡
築年月
2025年9月(新築)
交通

阪神本線青木」駅 徒歩5分

阪神本線深江」駅 徒歩14分

物件の特徴

  • バストイレ別

  • 室内洗濯機置場

  • TVモニタ付きインターホン

  • 独立洗面台

  • 浴室乾燥機

  • オートロック

  • エレベーター

セールスポイント

○ 給湯器 ○ システムキッチン
水廻り ○ 洗面台(独立) ○ 浴室乾燥機 ○ バス・トイレ別 ○ 洗濯機置場(室内)
冷暖房 ○ エアコン
収納 ○ シューズボックス
放送・通信 ○ BS ○ CS
セキュリティ ○ オートロック ○ 宅配BOX ○ 防犯カメラ ○ インターホン(カメラ付き)
その他 ○ エレベーター ○ オートバイ駐輪場 ○ 自転車置場 ○ 電気 ○ ガス(都市ガス)

ポイント

担当者のコメント

こだわりポイント満載のファーストフィオーレ東灘。留守中に注文した商品が届くので、配送時間を気にせず注文ができる宅配ボックスを共用部に備えております。室内設備は洗面所独立・浴室乾燥機など豊富に揃っており、過ごしやすいお部屋になっております。セキュリティ面は、TVインターホン・オートロックなどを設置しているので安全面でも優れております。木の温かみの広がる、フローリングの物件となっています。お部屋にも運命の出会いがきっとあります。ワンプラス六甲道本店ではそんな出会いをサポート致しますので、まずは078-846-3833/info@1plus.pwからお問い合わせください。

基本情報

保証金
-
敷引 / 償却
- / -
敷金積み増し
-
間取り / 詳細
1LDK
LDK 10.1帖/洋室 5.3帖
向き
専有面積
38.69㎡
バルコニー
(テラス)面積
-
所在階 / 階建て
7階 / 10階建
建物構造
鉄筋コンクリート
築年月
2025年9月(新築)
種別
賃貸マンション
保険会社 / 料金
有  22,000円  / 2年
保証会社 / 料金
必加入 / その他
sumai保証 ※大手法人相談可
現況
完成済み
入居可能時期
即時
その他条件
退去時RC代:4万9,500円  スマサポコンシェル入会金:5,500円  スマサポコンシェル:1,320円(月額) ペット相談:小型犬1匹のみ飼育可/二人入居可:子供可

設備条件

設備条件
  • ペット相談 / 陽当り良好 / デザイナーズ / 2人入居可 / 外国人可 / 学生向け / 女性向け / 海が近い / 静かな環境 / 室内洗濯機置場 / フローリング / ベランダ / バルコニー / 都市ガス / 公営水道 / 公共下水 / エレベーター / 電気有 / 駐輪場 / バイク置場あり / コンロ2口以上 / システムキッチン / バス・トイレ別 / 浴室乾燥機 / シャワー / 独立洗面台 / エアコン / ウォークインクロゼット / CS / BS / CATV / オートロック / TVモニタ付インターホン / 宅配ボックス / 防犯カメラ

その他

契約期間
1年
賃貸区分
一般
更新料
-
更新事務手数料
2.75万円
総戸数
54戸
特優賃
-
取引態様
仲介
物件番号
97415695
管理コード
-
情報更新日
2025年12月08日
次回更新予定日
2025年12月22日
取扱会社
  •  Oneplus六甲道本店
  • 兵庫県神戸市灘区永手町3丁目2-16 有本ビル
  • TEL:078-846-3833
  • 兵庫県知事 (3) 第11688号
    宅地建物取引士3名 賃貸不動産経営管理士1名 
  • (公社)全日本不動産協会,その他団体
備考
○ 給湯器 ○ システムキッチン
水廻り ○ 洗面台(独立) ○ 浴室乾燥機 ○ バス・トイレ別 ○ 洗濯機置場(室内)
冷暖房 ○ エアコン
収納 ○ シューズボックス
放送・通信 ○ BS ○ CS
セキュリティ ○ オートロック ○ 宅配BOX ○ 防犯カメラ ○ インターホン(カメラ付き)
その他 ○ エレベーター ○ オートバイ駐輪場 ○ 自転車置場 ○ 電気 ○ ガス(都市ガス) ○ バルコニー/ベランダ ○ フローリング
下水道・ダブルロックドア・人感センサー付照明・シャワー・クローゼット・クッションフロア下水道・ダブルロックドア・人感センサー付照明・シャワー・クローゼット・クッションフロア六甲道駅徒歩1分!神戸・六甲道・神戸大学周辺の賃貸はワンプラス六甲道本店。地域密着&未公開物件で理想のお部屋探しを全力サポート!【建物設備】

BS CS オートロック 防犯カメラ 宅配用ボックス エレベーター 自転車駐輪可 バイク置場(原付のみ) 公営水道 公共下水
【部屋設備】

モニター付インターホン ダブルロック システムキッチン コンロ口数2 バス・トイレ別 シャワー 洗面所独立 温水洗浄暖房便座 室内洗濯機置場 浴室乾燥機 エアコン 下駄箱 クローゼット フローリング バルコニー 人感センサーライト 都市ガス○ 給湯器 ○ システムキッチン
水廻り ○ 洗面台(独立) ○ 浴室乾燥機 ○ バス・トイレ別 ○ 洗濯機置場(室内)
冷暖房 ○ エアコン
収納 ○ シューズボックス
放送・通信 ○ BS ○ CS
セキュリティ ○ オートロック ○ 宅配BOX ○ 防犯カメラ ○ インターホン(カメラ付き)
その他 ○ エレベーター ○ オートバイ駐輪場 ○ 自転車置場 ○ 電気 ○ ガス(都市ガス) ○ バルコニー/ベランダ ○ フローリング
下水道・ダブルロックドア・人感センサー付照明・シャワー・クローゼット・クッションフロア下水道・ダブルロックドア・人感センサー付照明・シャワー・クローゼット・クッションフロア

ファーストフィオーレ東灘の他の部屋

  1. 203

    1K (25.08㎡)

    6.56万円(0.87万円/坪)

  2. 0206

    2DK (38.69㎡)

    9.96万円(0.85万円/坪)

  3. 206

    2DK (38.69㎡)

    9.96万円(0.85万円/坪)

  4. 202

    1K (25.08㎡)

    6.56万円(0.87万円/坪)

  5. 0203

    1K (25.08㎡)

    6.56万円(0.87万円/坪)

  6. 0204

    1K (25.52㎡)

    6.56万円(0.85万円/坪)

  7. 0202

    1K (25.08㎡)

    6.56万円(0.87万円/坪)

  8. 0404

    1K (25.52㎡)

    6.62万円(0.86万円/坪)

  9. 402

    1K (25.08㎡)

    6.62万円(0.87万円/坪)

  10. 404

    1K (25.52㎡)

    6.62万円(0.86万円/坪)

  11. 406

    2DK (38.69㎡)

    10.02万円(0.86万円/坪)

  12. 0402

    1K (25.08㎡)

    6.62万円(0.87万円/坪)

  13. 0406

    2DK (38.69㎡)

    10.02万円(0.86万円/坪)

  14. 0405

    1LDK (38.69㎡)

    10.02万円(0.86万円/坪)

  15. 503

    1K (25.08㎡)

    6.65万円(0.88万円/坪)

  16. 0506

    2DK (38.69㎡)

    10.05万円(0.86万円/坪)

  17. 0505

    1LDK (38.69㎡)

    10.05万円(0.86万円/坪)

  18. 0501

    1DK (28.16㎡)

    7.55万円(0.89万円/坪)

  19. 505

    1LDK (38.69㎡)

    10.05万円(0.86万円/坪)

  20. 501

    1DK (28.16㎡)

    7.55万円(0.89万円/坪)

  21. 506

    2DK (38.69㎡)

    10.05万円(0.86万円/坪)

  22. 0503

    1K (25.08㎡)

    6.65万円(0.88万円/坪)

  23. 602

    1K (25.08㎡)

    6.68万円(0.88万円/坪)

  24. 603

    1K (25.08㎡)

    6.68万円(0.88万円/坪)

  25. 0603

    1K (25.08㎡)

    6.68万円(0.88万円/坪)

  26. 604

    1K (25.52㎡)

    6.68万円(0.87万円/坪)

  27. 0602

    1K (25.08㎡)

    6.68万円(0.88万円/坪)

  28. 601

    1DK (28.16㎡)

    7.58万円(0.89万円/坪)

  29. 0604

    1K (25.52㎡)

    6.68万円(0.87万円/坪)

  30. 0601

    1DK (28.16㎡)

    7.58万円(0.89万円/坪)

  31. 0702

    1K (25.08㎡)

    6.71万円(0.89万円/坪)

  32. 702

    1K (25.08㎡)

    6.71万円(0.89万円/坪)

  33. 703

    1K (25.08㎡)

    6.71万円(0.89万円/坪)

  34. 704

    1K (25.52㎡)

    6.71万円(0.87万円/坪)

  35. 706

    2DK (38.69㎡)

    10.11万円(0.86万円/坪)

  36. 701

    1DK (28.16㎡)

    7.61万円(0.89万円/坪)

  37. 0701

    1DK (28.16㎡)

    7.61万円(0.89万円/坪)

  38. 0703

    1K (25.08㎡)

    6.71万円(0.89万円/坪)

  39. 0704

    1K (25.52㎡)

    6.71万円(0.87万円/坪)

  40. 0706

    2DK (38.69㎡)

    10.11万円(0.86万円/坪)

  41. 0804

    1K (25.52㎡)

    6.74万円(0.87万円/坪)

  42. 0802

    1K (25.08㎡)

    6.74万円(0.89万円/坪)

  43. 802

    1K (25.08㎡)

    6.74万円(0.89万円/坪)

  44. 804

    1K (25.52㎡)

    6.74万円(0.87万円/坪)

  45. 0903

    1K (25.08㎡)

    6.77万円(0.89万円/坪)

  46. 0902

    1K (25.08㎡)

    6.77万円(0.89万円/坪)

  47. 902

    1K (25.08㎡)

    6.77万円(0.89万円/坪)

  48. 903

    1K (25.08㎡)

    6.77万円(0.89万円/坪)

  49. 1003

    1K (25.08㎡)

    6.8万円(0.9万円/坪)

  50. 1003

    1K (25.08㎡)

    6.8万円(0.9万円/坪)

周辺施設

  • セブンイレブン 阪神青木駅前店の画像

    コンビニエンスストア

    セブンイレブン 阪神青木駅前店

    221m(3分)

  • ファミリーマート 阪神青木駅前店の画像

    コンビニエンスストア

    ファミリーマート 阪神青木駅前店

    480m(6分)

  • サンディサンシャイン神戸店の画像

    スーパー

    サンディサンシャイン神戸店

    530m(7分)

  • ヤマダデンキ テックランドサンシャイン神戸店の画像

    家電製品

    ヤマダデンキ テックランドサンシャイン神戸店

    532m(7分)

  • 神戸市立魚崎中学校の画像

    中学校

    神戸市立魚崎中学校

    686m(9分)

  • 神戸市公園緑化協会(公益財団法人)瀬戸公園の画像

    公園

    神戸市公園緑化協会(公益財団法人)瀬戸公園

    715m(9分)

  • 瀬戸公園野球場・テニスコート・球技場の画像

    スポーツ施設

    瀬戸公園野球場・テニスコート・球技場

    749m(10分)

  • ファミリーマート 東灘青木店の画像

    コンビニエンスストア

    ファミリーマート 東灘青木店

    763m(10分)

  • PAL・YAMATO(パル ヤマト) 青木店の画像

    スーパー

    PAL・YAMATO(パル ヤマト) 青木店

    785m(10分)

  • mandai(万代) 魚崎店の画像

    スーパー

    mandai(万代) 魚崎店

    818m(11分)

  • 神戸市立本庄中学校の画像

    中学校

    神戸市立本庄中学校

    919m(12分)

  • スギ薬局 本山南店の画像

    ドラッグストア

    スギ薬局 本山南店

    954m(12分)

  • 神戸市立福池小学校の画像

    小学校

    神戸市立福池小学校

    979m(13分)

  • 神戸市立本庄小学校の画像

    小学校

    神戸市立本庄小学校

    1073m(14分)

  • 神戸市立本山南小学校の画像

    小学校

    神戸市立本山南小学校

    1278m(16分)

  • 川井公園の画像

    公園

    川井公園

    1309m(17分)

近隣の物件

  1. エレナ本山

    神戸市東灘区本山北町1丁目

    2LDK (62.77㎡)

    14.5万円

  2. kanemasa

    神戸市東灘区住吉宮町2丁目

    1LDK (41.00㎡)

    12.1万円

  3. グリーン本山

    神戸市東灘区田中町2丁目

    1DK (27.33㎡)

    5.9万円

  4. アルバ西岡本

    神戸市東灘区西岡本6丁目

    2LDK (52.50㎡)

    12.5万円

ファーストフィオーレ東灘

ファーストフィオーレ東灘

10.11万円

10,000円

1LDK(38.69㎡)

お気軽にお問い合わせください

LINEからお問い合わせ 無料お問い合わせ

 Oneplus六甲道本店

078-846-3833

10:00~19:00

(休:水曜日)