丹波市春日町古河 倉庫 

9,000万円

兵庫県丹波市春日町古河

福知山線「黒井」駅徒歩25分

福知山線「石生」駅徒歩59分

価格
9,000万円
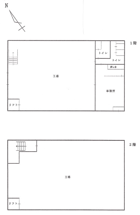
間取り
-
土地面積
4455.00㎡(1347.63坪)
構造
鉄骨造
所在階 / 階建て
- / 2階建
所在地
兵庫県丹波市春日町古河
交通

福知山線黒井」駅 徒歩25分

福知山線石生」駅 徒歩59分

専有面積
1047.90㎡(316.98坪)
用途地域
無指定
築年月
2011年3月(築14年)

セールスポイント

ひな段に立地している物件なので、地下車庫・外階段などを作らず建物と一体にすることもできます。土地面積は4455㎡(公簿)でございます。9,800万円の物件です。間取りに制限もなく、人目につきやすい角地で安心で理想的な住まいを築きましょう。

担当者のコメント

土地面積は4455㎡(公簿)となっております。9,800万円の物件です。ひな段にある物件なので、風通しの面でも優れていたり、眺望の良さも期待できます。こちらの角地は空き巣が心配だという方も安心です。

基本情報

価格
9,000万円
修繕積立金
-
建物面積 /
専有面積
1047.90㎡(316.98坪)
土地面積
4455.00㎡(1347.63坪)
バルコニー面積
-
その他面積
-
-
-
坪単価
28.39万円
間取り
-
向き
所在階 / 階建て
- / 2階建
築年月
2011年3月(築14年)
建物構造
鉄骨造
都市計画
非線引区域
用途地域
無指定
駐車場 /
月額料金
有 -
地目 / 地勢
山林 / ひな段
建ぺい率 /
容積率
60% / 200%
駐輪場
-
私道負担面積
-
総戸数
-
土地権利
所有権
土地
(敷金 / 保証金)
- / -
国土法届出要否
不要
現況
空家
接道状況
角地(西 公道)(南 公道)
取引態様
仲介
引渡
即時
管理員の
勤務形態
-
管理形態
-
管理会社 /
管理組合有無
- / -
その他
法令上の制限
-
取引条件の
有効期限
2025年11月23日

設備条件

設備条件
  • プロパンガス / 公営水道 / 公共下水 / 電気有
設備(その他)
    -

その他

物件番号
94862524
管理コード
-
情報更新日
2025年11月09日
次回更新予定日
2025年11月23日
備考
黒井駅近くの新居におすすめ、丹波市春日町古河 倉庫 の物件情報。土地面積は4455㎡(公簿)でございます。角地は人目に付きやすく、防犯面でも安心です。納得の9,800万円の物件は、素敵な室内が魅力的。風が通りやすい住まいが期待できるひな段の物件です。

支払いシミュレーション

月々の支払額
9.6
購入希望物件価格
万円
頭金
万円
金利
%
返済額(ボーナス1回分)
万円
返済期間

※ボーナスは自動で年2回分で計算されます。

近隣の物件

  1. 上小倉倉庫

    丹波市柏原町上小倉

    - (32.00㎡)

    50万円

丹波市春日町古河 倉庫 

丹波市春日町古河 倉庫 

9,000万円

-

-(1047.90㎡)

お気軽にお問い合わせください

LINEからお問い合わせ 無料お問い合わせ

 Oneplus六甲道本店

078-846-3833

10:00~19:00

(休:水曜日)