京地4丁目新築一戸建

3,480万円

兵庫県神戸市北区京地4丁目

神鉄三田線「田尾寺」駅徒歩24分

神鉄三田線「岡場」駅バス13分神姫バス「京地公園前」停歩6分

福知山線「三田」駅バス26分神姫バス「京地2丁目」停歩10分

価格
3,480万円
間取り
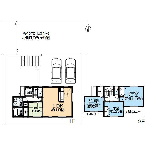
4LDK
土地面積
188.53㎡
所在地
兵庫県神戸市北区京地4丁目
交通

神鉄三田線田尾寺」駅 徒歩24分

神鉄三田線岡場」駅 バス13分 神姫バス「京地公園前」 停歩6分

福知山線三田」駅 バス26分 神姫バス「京地2丁目」 停歩10分

建物面積
98.82㎡
築年月
2026年1月(新築)

現地見学会

日時 2025年6月2日 ~ 2026年2月28日  10:00 ~ 18:00
  • ※事前に必ず予約してください

物件の特徴

  • バストイレ別

  • 室内洗濯機置場

  • TVモニタ付きインターホン

  • 浴室乾燥機

セールスポイント

ぜひ一度見ていただきたい、「京地4丁目新築一戸建」です。こちらは南向きの物件です。ぜひ一度ご覧ください。光を室内に取り込みやすい南向きの物件です。建ぺい率の低さから空地が増え、必然的に自然豊かな町になる第一種低層住居専用地域の物件です。当社スタッフが神戸市北区での住まい探しを全力でサポート致しますので、不動産情報をお求めならお気軽にお問い合わせください。

ポイント

2面バルコニー フローリング 複層ガラス 省エネルギー対策 間口10m以上

担当者のコメント

「京地4丁目新築一戸建」:神戸市北区エリアの新居にピッタリ。建物面積98.82㎡もあるので有効活用しましょう。価格が3,480万円の物件はこちらです。インフラが整備されているのが都市近郊物件の魅力です。当社スタッフとマイホームを探しましょう。神戸市北区や田尾寺付近での住まい探しを全力でサポート致します。まずはお気軽にご連絡ください。

基本情報

販売戸数
-
総戸数
-
間取り / 詳細
4LDK
LDK 18.0帖 1室/和室 4.5帖 1室/洋室 6.0帖 1室/洋室 5.2帖 1室/洋室 8.5帖 1室
向き
建物面積(坪数)
98.82㎡(29.89坪)
土地面積(坪数)
188.53㎡(57.03坪)
建ぺい率 /
容積率
40%/80%
築年月
2026年1月(新築)
駐車場 / 月額
有(2台) / 0円
土地権利
所有権
土地
(敷金 / 保証金)
- / -
建物構造
木造 / 2階建
傾斜地部分面積
-
路地状敷地
-
私道負担面積
-
セットバック
高圧線下面積
-
施工会社
ファースト住建(株)
用途地域
第一種低層住居専用
地目 / 地勢
宅地 / 高台
接道状況
一方(北 公道 6.0m 間口 14.5m)
国土法届出要否
不要
都市計画
市街化区域
総区画数 /
販売区画数
-/-
現況
完成済み
その他
法令上の制限
景観法/宅地造成及び特定盛土等規制法/建築協定有
取引態様
仲介
引渡し
即時
取引条件の
有効期限
2026年03月21日

設備条件

設備条件
  • 眺望良好 / 現地見学会 / 室内洗濯機置場 / フローリング / 都市ガス / 公営水道 / 公共下水 / 電気有 / 2面バルコニー / 駐車2台可 / ガスコンロ / コンロ2口以上 / システムキッチン / コンロ3口 / バス・トイレ別 / 追焚機能浴室 / 浴室乾燥機 / 洗髪洗面化粧台 / トイレ2ヶ所 / 床下収納 / ウォークインクロゼット / TVモニタ付インターホン / 宅配ボックス / 複層ガラス
設備(その他)
    -

その他

物件番号
95064906
管理コード
-
建築確認番号
第トラスト25-0293号
情報更新日
2026年03月07日
次回更新予定日
2026年03月21日
取扱会社
  •  Oneplus六甲道本店
  • 兵庫県神戸市灘区永手町3丁目2-16 有本ビル
  • TEL:078-846-3833
  • 兵庫県知事 (3) 第11688号
    宅地建物取引士 3名 賃貸不動産経営管理士 1名 
  • (公社)全日本不動産協会,その他団体
備考
新築の戸建て物件で、夢のマイホーム生活を送りませんか。津波の対策としての高台に立地している物件はこちらです。南向きの物件です。親しみをもてる押入が設置されてあり、落ち着きます。お引越しをお考えの方は、当社スタッフまでご連絡ください。お問い合わせいただければ、神戸市北区の田尾寺付近にある不動産情報をご紹介致します。

支払いシミュレーション

月々の支払額
購入希望物件価格
万円
頭金
万円
金利
%
返済額(ボーナス1回分)
万円
返済期間

※ボーナスは自動で年2回分で計算されます。

近隣の物件

  1. 兵庫県神戸市北区唐櫃台2丁目 中古戸建

    神戸市北区唐櫃台2丁目

    4LDK (101.02㎡)

    1,600万円

  2. 唐櫃台2丁目一戸建

    神戸市北区唐櫃台2丁目

    4SLDK (135.07㎡)

    1,580万円

  3. 有野台6丁目マリンホーム施工新築一戸建2号地

    神戸市北区有野台6丁目

    4LDK (107.13㎡)

    3,380万円

よく見られている物件

  1. 畑内古民家

    丹波市山南町畑内

    4DK (80.16㎡)

    268万円

  2. 東奥山本邸

    丹波市柏原町東奥

    5DK (111.73㎡)

    900万円

  3. 居組中古戸建 

    美方郡新温泉町居組

    4K (96.08㎡)

    80万円

  4. 西宮市山口町船坂中古戸建

    西宮市山口町船坂

    5SDK (75.30㎡)

    1,280万円

京地4丁目新築一戸建

京地4丁目新築一戸建

3,480万円

-

4LDK(98.82㎡)

お気軽にお問い合わせください

LINEからお問い合わせ 無料お問い合わせ

 Oneplus六甲道本店

078-846-3833

10:00~19:00

(休:水曜日)